Interested in renting a dedicated desk at our co-working office? That information is available here. Read on if you are interested in renting our event space.
Cabinet is a non-profit publisher and arts organization located in the Gowanus area of Brooklyn at 300 Nevins Street, between Union and Sackett Streets, and close to Park Slope, Boerum Hill, and Carroll Gardens.
Our ground-floor space is suitable for film screenings, receptions, conferences, workshops, book launches, meetings, retreats, photo shoots, small dinners, wellness classes, and more (not suitable, however, for dance parties, primal scream therapy sessions, or live, amplified music).
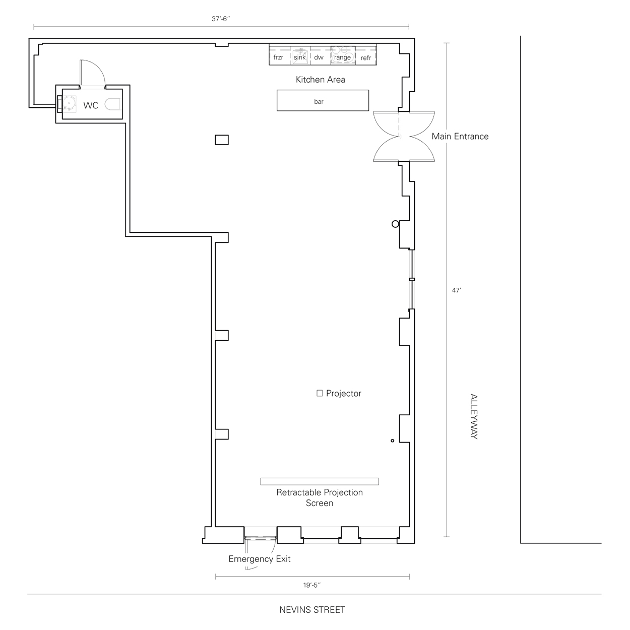
With roughly 1,000 square feet, the space can accommodate up to 74 people. See a floor plan and more photos of the space below. A larger floor plan is available here.
For availability and additional information, please call us at + 1 718 222-8434, or email us at rentals@cabinetmagazine.org and let us know the type of event you are planning, your proposed date(s), and your phone number
Overview
Address
300 Nevins Street (between Union and Sackett). Cabinet is conveniently located near the F, G, and R lines and there is often free street parking in front of the building in the evening. Detailed directions and map are here.
Space
1,000 square feet outfitted with audio/visual equipment, a kitchen, and bathroom. The L-shaped space consists of a 850-square-foot main space and a 150-square-foot side gallery. Double doors opening to an adjacent alleyway make it very convenient to unload heavy items from vehicles. Please note that the space has highly efficient ceiling fans but no air conditioning.
Availability
Day and evening events, 7 days a week.
Equipment
Sixty black folding chairs; eight 6' × 2.5' plastic tables; and two 4' × 2' plastic tables. HD Digital projector with 10'-wide projection area and retractable screen. Wireless internet access. Five microphones, including a wireless handheld mic and two lapel mics. PA system (ready to connect to an mp3 player or computer). Please note that we cannot accommodate DJs or live bands, and that music can only be played at a moderate level.
Bathroom
The space has a recently renovated bathroom.
Kitchen
The space has a recently constructed open kitchen, which has an induction stove, a convection oven, and an under-counter refrigerator and freezer. A microwave oven is also available.
Catering
Renters may work with any catering company that is licensed and insured. Renters need to provide their own dishes, utensils, glasses, ice, and supplies.
Staffing
Every event must have at least one Cabinet staff member present (this is included in the fee). Cabinet staff is not responsible for set-up or clean-up.
Clean-up
The renting party is responsible for leaving the space broom-clean after the event and have all trash double-bagged and ready for removal. If the room is not adequately cleaned, an additional cleaning fee will be charged depending on the condition of the space. Cabinet can dispose of up to four contractor-size trash bags. Each bag over this number will cost $20 per bag.
Fees
Fees—every penny of which goes toward our non-profit’s programming—depend on the day, length, and nature of the event:
Monday–Friday Daytime (10 am to 6 pm):
Half-day (4 hours): $500
Full day (8 hours): $1,000
Monday–Thursday Evening (6 pm to 10 pm):
$1,500
Weekends and Friday Evenings:
$1,500 minimum. Price determined according to nature and duration of event.
Non-profit organizations wishing to have a cultural event (talks, film screenings, book launches, etc) are offered a substantial discount. Please note that we do not host raucous parties and other events involving copious amount of alcohol. Please email us at rentals@cabinetmagazine.org for more information.
Refundable deposit
$1,000
Clean-up fee
$20 per bag of large trash after the first four
Additional fee if space is not left broom-clean
Floor plan and photos
A larger floor plan is available here.







